1.WYX/B型化學除油器能將設備沉淀池內積聚的泥渣循環流動,與原水中的雜質、油份相互碰撞、接觸、吸附,充分發揮投加藥劑的作用與CYCW型化學除油器處理效果相比,提高了處理效率和處理效果。
2.運行成本一步降低:一是由于藥劑作用發揮充分,可節省藥劑投加量;二是降低了電能消耗。它與CYCW型化學除油器設備相比,其投加的藥劑藥量可節省30%以上;降低電能消耗在60%以上,節約了運行成本。
3.允許穩定、適應性強。由于設備容積大,且部分污水在設備中回流,增加了藥劑在污水中的碰撞及吸附機會,增強了藥劑的作用,加速了懸浮物及油份的絮凝沉降速度,提高了處理效果。
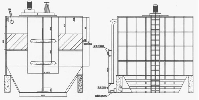
4.管理更為方便。WYX/B型化學除油器為單斗排泥,且泥斗容積大,操作方便,排泥周期調節余地大。泥漿回流量可人工調節,只要升降葉輪裝置高度即可,其調節范圍200mm。當設計選用單臺設備運行時,可以不建泥漿池,用泥漿泵從泥斗中吸泥直接送去壓濾,或將沉淀物送回旋流地(或一次鐵皮坑),節省了后部工序處理投資,且減少占地面積,更適合老流程的改造。
